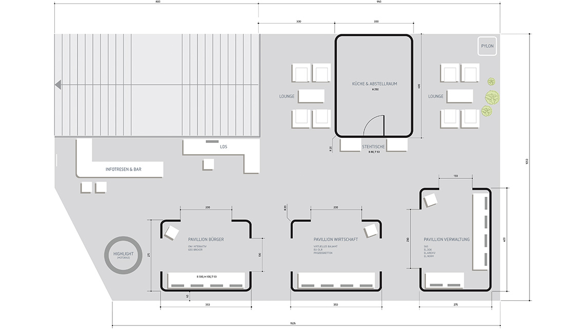
Brandenburg Messestand
Kunde: Land Brandenburg
Auftraggeber: Faber&Moldenhauer
Partner: mondsilber
Leistungen: Messestandplanung, Konzeption & Gestaltung, 3d-Visualisierung
Kunde: Land Brandenburg
Auftraggeber: Faber&Moldenhauer
Partner: mondsilber
Leistungen: Messestandplanung, Konzeption & Gestaltung, 3d-Visualisierung